|
DUPONT PROJECTS: Projects focused on the local exploration, support and advancement of the cultural, urban space as considered through art, architecture, urban planning, landscape architecture, photography, community and public art. Dupont Projects has been active in initiating and presenting projects since 2003 in the Dupont Bloor West area of Toronto.
Sept 17 Dupont Projects evolved into Dyan Marie Projects
with a newly renovated exhibition space for art, architecture and landscape architecture and a wide mandate to explore urban issues, ideas and reflections on contemporary cultural experience.
Dyan Marie Projects: Upcoming, Current and Past Exhibitions and Projects
Dupont Projects: Recent and In-progress Exhibitions and Projects
About the Space
Contact
Location
Dyan Marie Projects
Upcoming Current and Past Exhibitions and Projects
Fall Program Schedule
September 17 September 24, Opening Sept 17. 2 - 6
Under Construction
The process of creating artworks and the making of the exhibition space.
Johnson Chou architectural design drawings for the exhibition space
Beth Howe landscape drawings stitched in thread on paper of Dupont area
Michael Merrill paintings of spaces where art is exhibited, prepared and made
Guy Walter environmental landscape design that mediates the surrounding site
October 1 29, 2005. Opening Oct 1. 2 - 5
Imagining Architecture
Toronto landmark cultural architecture projects by leading city architects.
Eberhard Zeidler Ontario Place, approaching its 35th Anniversary
Jack Diamond Four Seasons Centre for the Performing Arts, opening 2006
Donald Schmitt Bahen Centre for Information Technology, University of Toronto
November 5 December 3, 2005. Opening Reception Nov 12. 2 - 5
Green Eyes
Seeing from an environmental perspective.
Lois Andison Noel Harding Elise Rasmussen
Dupont Projects Recent and In-progress
Exhibitions and Projects
April 30 to May 7, 2005
Community Bicycle Network Poster Project
Saturday, April 30th at 12:30 p.m. to 5 p.m.
Wednesday, May 4 to Friday, May 7 - evenings
Saturday, May 7 11 a.m. to 4 p.m.
The Community Bicycle Network proudly presents,
Women & Cycling
All poster submissions to the Poster Project are included in the exhibition.
Judges: Emily Hogg, Sybil Rampen, and Tanya Read.
CBN is a community-based bicycle organization with the goal of promoting and stimulating healthy, active, and neighbourhood-friendly sustainable transportation initiatives within the City of Toronto.
For more information visit www.communitybicyclenetwork.org
DIG IN & Dupont/Bloor West celebrates Canada Day
and the official opening of Walk Here with a community-wide festival.
July 1st, 12 - 5, 2005 at Wallace Emerson Park
Dupont Projects continues with Walk Here related events until July 2005 as described below.
November 2004 to July 2005 - on-going
Walk Here
A initiative by Dyan Marie, DIG IN, Dupont Projects, an the Bloor/Dupont West community to create a public artwork, that helps revitalize, green and connect Dupont West neighbourhoods in Toronto. Through the creation of an art-embedded walking system throughout the community, it pulls neighbours together and reconnects the area to the city at large. The walkway creates new public art, public space and green space. WALK HERE is now in progress for Wallace Emerson Park. Dupont Projects will host a number of related workshops, classes and exhibitions related to developing art and ideas for Walk Here. Construction of the art-embedded, west-end, concrete portion of the Walk Here walkway will be installed this spring by Parks Technical Services. In order to minimize user conflicts, the remaining granular portion of Wallace Emerson walkway will be completed in the fall by Technical Services, once the field use has tapered off.
Walk Here projects completed, in progress or in planning:
Contained:
Bishop Marrocco/Merton High School, grade 12 interns, helped with the project “Contained” and thank you to the local residents who dropped off plastic bottles. The project focuses attention on found garbage - what it contains, how it is packaged, its chemical make-up, consuming and recycling ideas and observations, appreciation of design and shape: discarded pop bottles, water bottles, soap containers. These refuse shapes - collected in the neighbourhood with the local community - provided a starting point for a Walk Here artwork that will be inset at Wallace Emerson Park. Filled with recycled glass, mirrors and cement and then cut in half: the works appear as beautiful reminders. The works have been cast and will be ready for installation in May.
Walking Walk Here:
Primary students at three local schools, Dovercourt Public School, St. Luigi and St. Sebastian have contributed drawings that explore the ideas of walking, playing and being in the park. Working with an educational Walk Here workshop by Snaige Sileika the children considered - local surroundings, environmental issues, ways to use parks, what public art and space mean - to produce images of people and animals in movement and activity. The drawings will be further developed, cut out in stainless steel and inset into the concrete walkway at Wallace Emerson Park. The drawing characters will appear as participants who are walking along the Walk Here walkway.
Connections:
The Ontario College of Art and Design develop proposals for Walk Here. Specifically students explored ways to link the neighbourhood by developing ideas for a pedestrian railway overpass bridge and related streetscapes.
Constellations:
Selected artists, that live and/or work in the Dupont/Bloor West area, were invited to create small black and white drawings that reflect their own work. The drawings were used to create cast relief sculptures to seed the surface of the Walk Here walkway.
As a way to encourage additional community participation, casts were created so that rubbings can be made from their surfaces. Walkway users can create their own print edition by covering the cast in paper and rubbing a pencil back and forth over the surface.
The intention is that this work will encouraging walking and the creation of Walking Paths. Over time, the hope is that project will expand into new walking sites with a growing number of participating artists.
Touch Stones
At Dupont Projects open-house workshops we have cast a number of cement pavers with finger mazes impressed into the surface. The intention is that they will be installed in a Park seating area.
In Construction
To be developed for spring 2006: Invitation to local residents, unions, construction trades and landscape companies to develop walkway sections that demonstrate and celebrate their work. This would draw on the construction-based talents that employ many in the community and are a ready source of appreciation. A youth educational component should introduce the idea of the trades as a career goal. This could be a competition that demonstrations methods of construction and design excellence with awards worth competing for.
The walkway intends be a fabric of changing original patterns and an engaged, complicated motif reflecting the multi-cultural nature and skills of the local community.
October 13-October 26
Jason Yeh and Ricki Oltean-Lepp

PAINTURE
For more information contact:
Jason Yeh: jccyeh@hotmail.com
Ricki Oltean-Lepp: rickolte@yahoo.com
Sept 15 to Oct 4, 2004
Robert Linsley and Mike Murphy

Showing together for the first time in Toronto, Robert Linsley and Mike Murphy will exhibit paintings and objects relating to their dialogue of the past two years. Their work is informed by current scientific thought and by a reinvestigation of some important thinking about painting of the late sixties and early seventies. Together they propose a reinvention of the terms and practices of modernism.
Linsley’s paintings analyze the nature of the picture plane. He tests the amount of information that a plane can carry concerning the position and motion of objects in space.
Murphy’s objects all circle around an attempt to partially restrict the tools of analysis. His pieces examine the plausibility of the removal of totalizing reference. What this might be replaced with is uncertain, but Murphy believes his imagination can allow for hybridized associations.
When old Copernicus asked the perceiver to revolve instead of the heavens themselves, we lost our way for a while in a dizzying swirl. Quickly, new ways of regarding the state of things arose. It’s not so much that things got back to normal, but rather that the same world just got a bit more complex. It turns out that small distinctions matter after all.
Robert Linsley lives and works in Kitchener, Ontario, and Mike Murphy lives and works in Toronto, Ontario.
Painting and Sculpture
For IMAGES click here
For more information contact:
Robert Linsley: rlinsley@watarts.uwaterloo.ca
Mike Murphy: smith.murphy@sympatico.ca
May 16 to July 17, 2004
Look Out: Look Here

Look Out: Look Here is a community-based photographic activity and exhibition that began in May, 2003 as an outlet for the Dupont/Bloor West community to express its concerns over the local murder of ten-year-old Holly Jones. In the aftermath, residents felt both ashamed and fearful of their community. The press painted the neighbourhood as a dangerous place, with hundred of pedophiles living in the vicinity. Parents kept their children inside, people talked about moving away. The project was developed as a way to get people out to walk and rediscover the vitality and goodwill in their neighborhood.
250 disposable cameras were distributed to Holly's classmates, friends and neighbours, together with a general invitation to the community to participate as well. The project used photography as a way of looking at the Dupont/Bloor West neighbourhood and as a way of making a collection of things that caught and focused people's attention.
Look Out: Look Here is a gesture of support for the Jones family. It is a way to see the local in the sharp focus that photography provides and it offers encouragement for residents to explore and reclaim the neighbourhood. The exhibition gives the opportunity to choose a favourite image from the 1400 photographs that were made in the neighbourhood and to actively place it within the exhibition.
Click website address for information and IMAGES www.lookoutlookhere.info
May, 2004
At the Massage Gallery, 1444 Dupont Unit 9A,
Blind Spot
Urban design ideas based in the Dupont/Bloor West neighbourhood
University of Toronto Faculty of Architecture, Landscape and Design and the Department of Geography present an exhibition of projects that re-imagine parts of the Dupont/Bloor West neighbourhood.
Exhibiting Participants: Abbie Kar, Ajith Karunasena, Amy Roots, David Markham, Eric Eidlin, Hao Zhang,Limin Fang, Lu Sun, Lyn Northey, Nasim Adab, Patrick Kniss, Waifeng Chen, Wilma Kwan, Ziad Haddad
Instructors: Chris Hardwicke, Mark Sterling and Paul Hess
May 16 to June 30, 2004
Campbell Park Project: Walk Here
Community and public artwork and project to design an art embedded walking system thoughout the Dupont West neighbourhood
Located at Campbell Park Rink House
Workshop and exhibition for developing plans and ideas for the Walkway

More information click www.walkhere.org
April 14 to May 8, 2004
LA ONE: Whatever and Everything About Landscape Architecture
Ideas about Landscape Architecture.
An exhibition to bring together ideas about Landscape Architecture in an event to push forward both landscape content and landscape as content.
Eric Aurandt, Nadia Amoroso, Julius C Aquino, Samuel Bietenholz, Yvonne Battista, Lubo Brezina, Robin Chubb, David Dennis, Daphne Gerou, E. B. A. M., Fung Lee, Sophie N Sauvé, Matthew Sweig, Nicole Wehrmeister, UrbanSurface, and Guy Walter
For IMAGES click here or contact: urbansurface@hotmail.com
Curated by Guy Walter: guy.walter@utoronto.ca
March 24 to April 13, 2004
Opening: Saturday, March 27, Artist Present: 2 to 5
Works by Artists at 1444 Dupont
Diane Lingenfelter, Larry Middlestadt, Lois Andison, Shelley Adler, Ania Machudera, Kathryn Bemrose, Dionne Simpson and Dyan Marie
8 at 1444: From Toxic Dump to Arts Community
A few short years ago the site of Dupont Projects, a new Project and Gallery Space in the Dupont West area of Toronto. was the site of a toxic dump. The surface of the place was stacked in used chemical drums. Since then, the drums have been removed, the soil cleaned, and a commercial/light industrial building suitable for studios, has been designed and constructed. The site now provides a location for small businesses, artists and photographers' studios.
This exhibition brings together eight of the artist working in the area.
More proof that grass-roots culture is taking root north of Bloor. For IMAGES click here.
February 4 to March 23, 2004
Wallace Emerson Walkway Project
Cement design and workshops explore ideas for Wallace Emerson Park.
WALK HERE is a special walkway project for Dupont West, an at-risk, inner-city Toronto neighbourhood struggling with entrenched social concerns and a discouraging physical make-up. The project is intended as a vehicle for neighbourhood energy and aspirations and an engine for urban revitalization.
Walk Here was initiated as an urban intervention art plan in 2002 with wide community participation and consultation. Over the past two years we have established a non-profit community out-reach groupDIG IN: Dupont Improvement Groupand gained Ward 18 support from Councillor Adam Giambrone and his office. Via community and Ontario Municipal Board meetings we have engaged local developers, GO Transit and CN Railway, which have approved in concept an overpass pedestrian bridge that we have proposed as an important element in the Walk Here plan. Staff from Parks and Recreation, Culture, Urban Planning and Public Works have been informed of the project and provided help.
This effort is already fostering a stronger sense of community. In the end we will have a signature community artwork and new sustainable public space. The project links existing public green spaces in the neighbourhood by means of an art embedded pedestrian walkway that threads its way to join parks on either side of an existing rail corridor. With the addition of a rail lands overpass, it will expand the sense of neighbourhood in the area by enriching it with public art, creating destinations for walks, encouraging exercise and fostering relationships that will keep eyes on the streets and help to make the area safer, engaged and vibrant. www.walkhere.org
November 15 to January 31, 2004 and on-going
Dyan Marie's Brilliantly and Everything Else
Website based projects open up urban issues, observations and opportunities.

Click on the website addresses below to see the Dyan Marie initiated sites/projects
www.iamalive.ca - A reminder that you are alive. (move your mouse over the surface of the screen to find the message)
www.digin.ca - An urban intervention art project that initiates inclusive community and cultural plans and actions that will contribute to sustaining neighbourhoods that are green, clean, safe and civil by fostering improvements in the areas of their social, environment, cultural, economic and physical make up.
www.walkhere.org - A community and public artwork that helps vitalize, green and connect the Dupont West neighbourhood by creating an art-embedded walking system throughout the at-risk community that pulls it together as a place and reconnects the area to the city at large.
www.asphaltgardens.com - Photographic work documents accidental gardens that force their willful existence through the cracks and crevasses of decaying urban hardtop surface.
www.onthecorner.biz - Imagine that you are a prostitute.
www.talkhere.org - A collection of overheard local conversations that introduces a level of suspense and reflects localized thoughts of opportunity, frustration, concern or irritation.
www.latesummerroadside.com - An open space to remember colour and change.
and
www.lookoutlookhere.info - a community-inclusive photographic project developed in response to the murder of local ten-year-old girl Holly Jones
October 4 to November 14, 2003
ABOUT HERE
Art, Architecture, Landscape: for and the about the Dupont West

Dupont West is undergoing rapid change. The Lansdowne Dufferin area has two major large-scale residential/mixed use development projects underway. Go has ideas to introduce a rail line with an overpass reaching heights 30 feet. The TTC Barns on Lansdowne are slated for demolition and redevelopment. All of this is proposed for a community struggling to develop and retain its own character amidst a long list of local concerns and issues.
This project pools information, ideas and observations. It is intended to help develop an informed community perspective, to help guide change and to introduce our neighbourhood to the city at large.
Attila Burka: Burka Architects- Concept Plans for General Electric site at Lansdowne and Dupont
Guy Walter: Urban Surface - Concept drawings for Community Green Walking System “Walk Here” a community and public art walkway that connects internal neighborhood sites and reconnects to the city at large
Sheldon Levitt, Les Klein: Quadrangle Architects- Concept Plans for the redevelopment of the Galleria Mall site at Dupont and Dufferin
Jim Melvin, Fung Lee, Alissa North, Sam Bietenholz. PMA Landscape Architects- Ideas for improving local parks: Splash playground for the westside of Wallace Emerson Park & concept designs for park information boards
Dyan Marie: artist and founder of DIG IN & Dupont Projects - Photographic work documents: accidental gardens and cuts made into CN /CP rail lines fences to gain access to green space and reconnect neighbourhoods
Richard Rhodes: artist, writer and editor of Canadian Art Magazine - Photographs of clouds that form over the blacktop surface of the Galleria Mall and Wallace Emerson Park
For IMAGES click here.
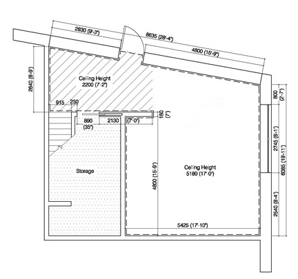
Dupont Projects About the Space
New construction. New drywall walls. Cement floors, High level of natural light. Double height ceilings. Gas heat and air conditioning. Free Parking. Street level entrance.
Gallery Dimensions:
Floor to ceiling height - 18 feet,
South Wall - 17' high x 17' 7'' wide,
East Wall - 17' high x 19' 11'' wide
North Wall -17' high x 24' 8'' wide,
West Wall - 11' 6'' high x 15' 9 wide.

More information:
Email: projects@dyanmarie.com
Telephone: 416-536.4017
Location: 1444 Dupont Street, Building D, Unit 31
Toronto, Ontario, Canada, M6P 4H3
Hours: Tuesday to Saturday. 12:00 to 5:00 pm. or by appointment
Directions:
1444 Dupont Unit 31
Located west of Lansdowne Ave. and the railway underpass.
Turn north on Campbell Ave. Building D,
Storefront entrance.
(Next to the Warriors Martial Arts.) Free parking on site.
|
|